East Langton Farmhouse
East Langton East Calder West Lothian EH53 0JW
East Langton Farmhouse is a traditional detached farmhouse located on the edge of East Calder. The property is bright and airy, with a large garden and a garage and benefits from traditional features but also includes modern improvements in the bathrooms and kitchen. This unfurnished property offers generous and flexible living space spread across two floors with a large garden, making it the perfect property for those seeking a rural setting while still enjoying access to amenities.
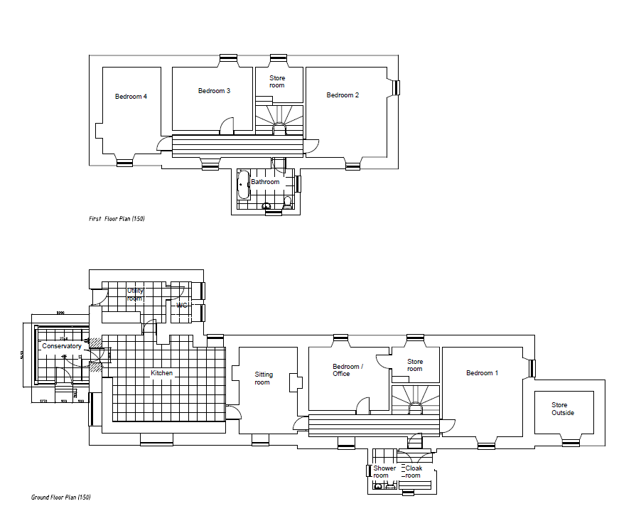
The ground floor offers an adaptable living space, featuring a bright conservatory entrance and a spacious kitchen/diner ideal for everyday living and entertaining. This level also includes a utility room, cloak room, shower room and WC. A flexible bedroom or office with walk in storage provides further convenience, complemented by a comfortable sitting room and an additional large living room or bedroom.
The first floor offers plentiful accommodation, with three double bedrooms that provide ample room for furniture and storage. A bright and practical family bathroom serves the upper level, while a useful storeroom adds valuable storage space.
The property sits at the end of a private track and is bordered to the south by open agricultural land, creating a peaceful setting with a strong sense of seclusion and privacy While also benefiting from a grass lawn to the front in addition to a large garage, outdoor store, dome greenhouse and large onsite parking area. East Calder is a peaceful and sought-after village surrounded by the scenic countryside along the river Almond, located around 12 miles south-west of Edinburgh and 2 miles east of Livingston.
There is a wide range of local amenities nearby and together with the neighbouring towns, local shops, primary school, surgery, parish church, restaurants, and cafes offer a blend of suburban life with rural access. The village benefits from excellent transport connections via the A71 and M8, with the nearest train station located in Kirknewton and additional stations available in Livingston and West Calder. These provide frequent public transport links to both Edinburgh and Glasgow, making the area well connected for commuters.
Council Tax: Band F EPC: D Monthly Rent: £2,250 Deposit: £4,500 Landlord Registration Number: 1793233/400/26112 Letting Agent Registration Number: LARN1904065



















