Millstones Business Centre
Bootle, Cumbria, LA19 5TJ
A unique opportunity to acquire a business centre located within the Lake District National Park comprising of four let units with communal areas and car parking.
- Investment opportunity
- Business centre
- On site car park
- Western Lake District Location
The property is in the village of Bootle in West Cumbria, within the Lake District National Park. The site extends to approximately 0.83 acres in total.
Situation
Millstones Business Centre is located in the village of Bootle, which offers a local shop and a post office. The village provides a peaceful rural atmosphere, while still being well connected to nearby larger towns.
Bootle is easily accessible from the A595 which boasts good access to West Cumbria, Carlisle to the North, and Broughton in Furness to the South.
Millom – 8 Miles
Broughton in Furness – 12 Miles
Seascale – 14 Miles
Whitehaven – 25 Miles
Workington – 32 Miles
Cockermouth – 36 Miles
Access
The property can be accessed directly from the A595.
The What3words code for the property is: ///fewer.rift.revision
The nearest postcode is LA19 5TJ
An access will be retained by the vendors in order to access adjacent agricultural land.
Directions
From the centre of Whitehaven, head south on the A595, traveling for approx. 24 miles. Upon entering the village of Bootle the Millstones Business Centre will be on the right-hand side with access directly into the car park.
Description
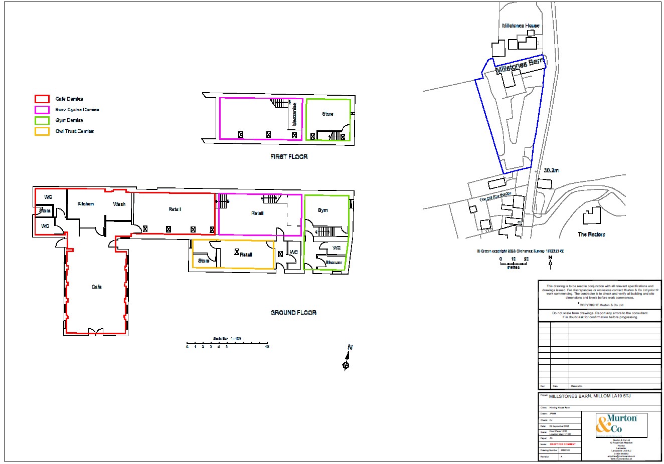
Millstones Business Centre is located in the village of Bootle. The business centre provides a range of commercial spaces for local businesses, offering both small office units and potentially larger business spaces, making it attractive to various businesses looking for a base in the area.
The business centre is currently occupied by four tenants offering an attractive proposition to those seeking an investment. The current rent passing is £2,190 per calendar month (excluding VAT).
The business centre consists of the following:
Cafe
Comprising open space for dining, kitchen facilities, and two W/C’s.
Buzz Cycles
Open shop space.
The Owl Trust
Office/retail space.
Communal W/C
Gym
With separate W/C and separate shower.
Services
The property benefits from mains electricity, water and drainage.
Please note that we have not been able to test any services or make any judgement on their current condition. Prospective purchasers should make their own enquires.
Business Rates
Business rates are paid by the tenants.
Fixtures & Fittings
No warranties are given for the fitted appliances.
Energy Performance Certificate Rating
The EPC rating has been assessed as Band B. For full copies of the EPC information and copies of the reports please contact the Selling Agent.
Planning & Development
Prospective purchasers should make their own investigations into any planning and building consents and seek their own relevant and professional advice. It is assumed that all current uses are lawful. The full planning history can be provided upon request from the Selling Agent, in particular, the conversion of the building into a tearoom and craft facilities as conditionally granted under the planning reference 4/05/0487/4 in 2005.
Mineral Rights
To the extent they are included within the vendor’s title.
Local Authority
Cumberland Council
Civic Centre Rickergate
Carlisle
CA3 8QG
Tel: 0300 373 3730
Plans, Areas and Schedules
These are based on the Ordnance Survey and Title Deeds and are for reference only. They have been carefully checked and computed by the selling agents and the purchaser shall be deemed to have satisfied themselves as to the description of the property and any error or misstatement shall not annul the sale nor entitle either party to compensation in respect thereof.
Viewing
By strict appointment with the Selling Agents: Davidson & Robertson Ltd. Telephone: 01900 268633 or via email: sales@drrural.co.uk All viewings are to be arranged with the selling agents.
Date of Entry
By mutual agreement.
Deposit
A deposit of 10% of the purchase price will be payable on exchange of contracts. This will be non-refundable in the event of the transaction failing to reach completion for reasons not attributable to the vendors or their agents.
Solicitor
FAO Sarah Carr-Baugh
Burnetts Solicitors LLP
Victoria House
Wavell Drive
Rosehill
Carlisle
CA1 2ST
Email: scb@burnetts.co.uk
Offers and Anti-Money Laundering (AML) Regulations
Formal offers, in the acceptable Scottish form, should be submitted through a Scottish Solicitor to the Selling Agent. Under The Money Laundering, Terrorist Financing and Transfer of Funds (Information on the Payer) Regulations 2017 we are required to carry out money laundering checks on purchasers. To facilitate this and to proceed promptly with submitting an offer, the following documentation must be provided to us in advance (i.e. prior to or alongside the formal offer submission):
- Valid proof of identification
- Proof of current address
- Evidence of purchase method (e.g., Mortgage in Principle, Proof of Funds)
Upon verbal acceptance of an offer, we require to verify the purchaser’s identity and use an online verification service provider to do so. We cannot enter a business relationship with a purchaser until they have been identified. Failure to provide required identification may result in an offer not being considered.
Broadband/Mobile signal
We understand that broadband & mobile reception is available. Buyers are advised to visit OFCOM website for an indication of supply and speeds: //checker.ofcom.org.uk/en-gb/broadband-coverage and carry out their own further due diligence.


























